NEW TOWN PLAZA

HONG KONG

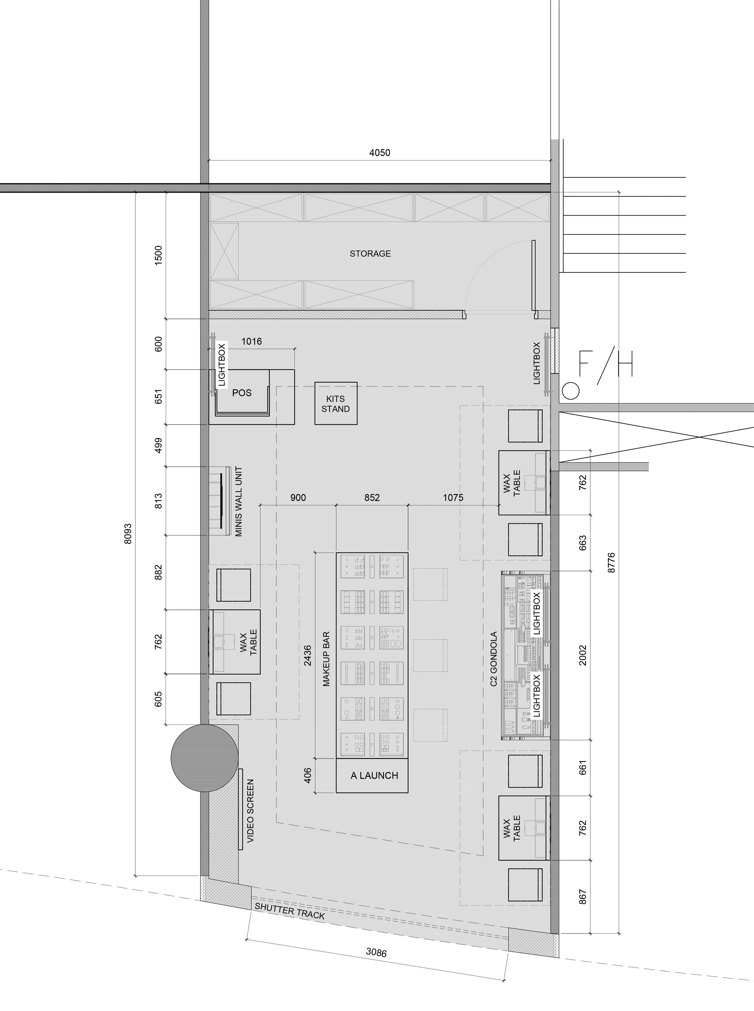
One of many Benefit boutiques in the world, this HK Boutique is the first of many to be built that features the brand redesign. The team at Global Creative Services have been working to help support this rebranding by designing new fixtures and creating a new store look and feel. Collaborating with the SVP of Store Design, 2D and 3D assets were created and released globally for different regional markets to use. To help provide the markets with an understanding of the brand redesign more clearly, renderings were created as part of the design process. Each floor plan has been vetted through to ensure that the consumer experience is well rounded and welcoming. Every detail, from the general floor layout to the design fixtures to the graphics, has been collaboratively worked on to maintain Benefit’s fun and playful personality.

In this particular boutique, the consumer is met near the store entrance with an illuminated table that features Benefit’s newest products. It is attached to a make up bar that allows for testing and exposure to more product. Wax stations are integrated throughout the space to allow the consumer to see the different services Benefit provides. As a beauty brand, Benefit’s point of difference is the plethora of beauty services provided in their boutiques. The design team works together to bring all the brand experiences into the store. We want every consumer to feel the same fun and quirky spirit we feel at Benefit Cosmetics.

 
2019.08.21_New Town Plaza_v6_2.jpg
2019.08.21_New Town Plaza_v6_3.jpg
2019.08.21_New Town Plaza_v6_1.jpg